Image
BATPOL vue façade est

BATPOL

Le projet BATPOL consiste en la surélévation de la halle de pompiers réalisée en 2017. Le projet est développé par les bureaux 2b architectes à Lausanne et Pirmin Jung ingénieure AG à Thun, mandatés par le Conseil communal suite à une procédure sélective en deux temps. Il prévoit la surélévation de 6 niveaux de la halle des pompiers. L'objectif est de réaliser un bâtiment administratif pour y loger les Services communaux de la police locale, de la mobilité et de l'informatique. De plus, il offrira 2 étages de bureaux destinés à la location. Il permettra ainsi de répondre aux besoins en locaux et de réunir sur un même site l’ensemble des Services de la même Direction.

Avancement

  • étude de faisabilité : 2016
  • crédit d’étude : fin 2016 
  • procédure sélective en 2 tps pour archi et ing. civil : mars 2017 
  • avant-projet et projet : 2017 – 2018 
  • mise à l’enquête de la surélévation : avril 2019 
  • crédit d’ouvrage : septembre 2019 
  • exécution : octobre 2019 à 2022
  • mise à disposition des locaux : été 2022 
Genèse du projet

Au cours du développement de ce projet, en 2014, le Maître de l'ouvrage s'est interrogé sur les potentiels d'aménagement de la toiture plate de 400 m2 de la nouvelle halle des pompiers ; il a approuvé l'idée de densifier le site, déjà composé de la caserne des pompiers et d’un immeuble d’habitation à destination des sapeurs-pompiers, par l'ajout d'une surélévation. Il s'agissait à son sens de la proposition la plus appropriée dans ce contexte. Cette solution a donc été analysée de façon plus approfondie par le bureau mandataire Aeby Aumann Emery architectes sous forme d’une étude de faisabilité.

Etude de faisabilité

L’étude a permis de démontrer le potentiel d’une surélévation de 4 niveaux au-dessus de la toiture de la halle. Le programme des Services de la police locale et de la mobilité occupera 3 niveaux, le quatrième sera utilisé pour les besoins du Service informatique. La relocalisation de la Police locale et de la Mobilité procurera plusieurs avantages : elle répondra d’une part aux besoins de locaux de la police et réunira l'ensemble des Services de la même Direction, facilitant ainsi sa conduite ; d’autre part, elle offrira à la Ville l'opportunité de réaffecter les locaux libérés à la Grand-Rue 37. La relocalisation du Service informatique offrira des possibilités de synergie avec le Service de la police locale et le secteur Feu et libérera des locaux à l’hôpital des Bourgeois.

Description du projet de surélévation BATPOL

Le projet propose une approche programmatique et structurelle prospective, rationnelle et pragmatique permettant d’intégrer l’entier des programmes administratifs destinés aux Services de la police locale, de la mobilité et de l'informatique ainsi que des espaces voués à la location.

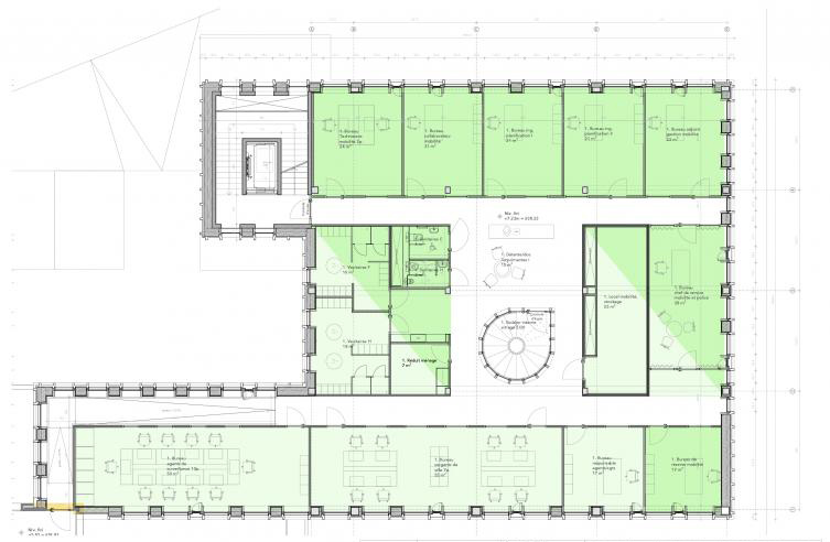
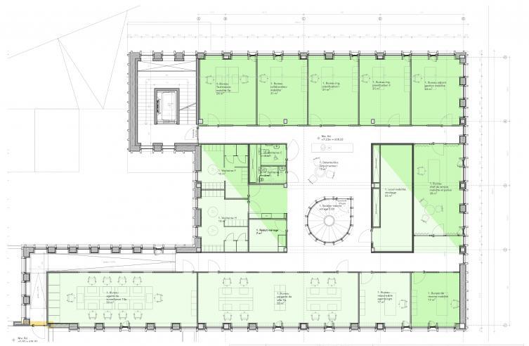
  • 1er et 2ème étage: programmes administratifs des Services de la police locale et de la mobilité (accueil et programmes accessibles au public au 2ème niveau)
  • 3ème et 4ème étages: espaces de bureaux administratifs à louer
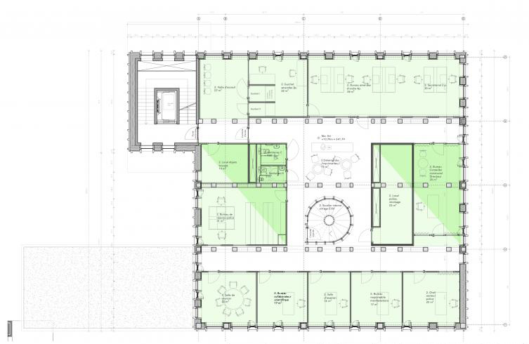
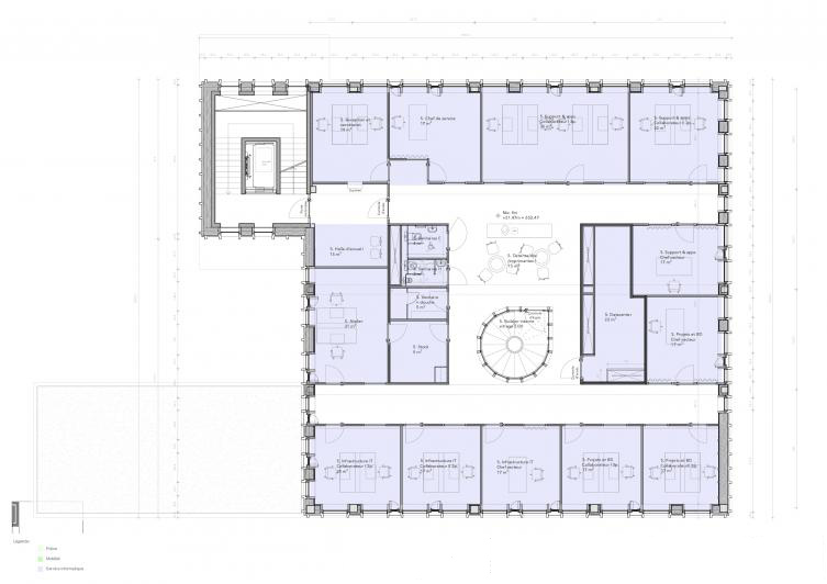
  • 5ème étage: programme administratif du Service informatique et accueil public
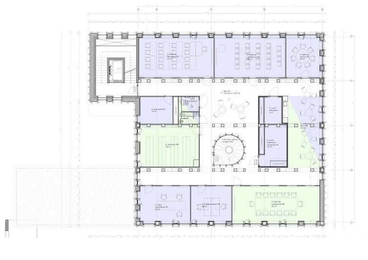
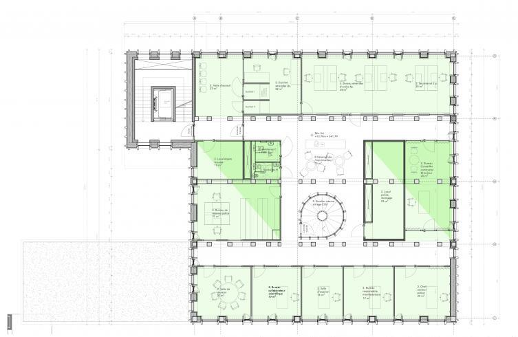
  • 6ème étage: programmes ‘communs’ à la  police, la mobilité et le Service informatique. La cafétéria permettra les échanges entre les collaborateurs et une meilleure optimisation de l’usage des salles de conférences;

L’entier des accès est sécurisé, y compris entre les Services, par un dispositif de sas contrôlé en lien avec la circulation interne reliant les 6 étages administratifs.

Image
BATPOL niv 1
Image
BATPOL niv 2
Image
BATPOL niv 5
Image
BATPOL niv 6
Structure

Afin d’alléger le poids propre de la structure et donc les efforts reportés sur la halle existante tout comme les mesures parasismiques, le projet met en oeuvre une structure porteuse bois, avec poutres triangulées reprenant la trame porteuse de la halle existante. Les dalles permettent de stabiliser horizontalement les étages de la surélévation tout en offrant une isolation acoustique optimale et une masse d’inertie thermique non négligeable.

Le noyau vertical de circulation, excentré au nord-ouest hors du gabarit de la halle, permet l’accès public aux étages. Entièrement en béton, il offre d’une part un élément important de contreventement, mais également une voie de fuite/issue de secours non combustible pour les étages supérieurs.

Construite en site occupé, cette surélévation réalisée en structure bois avec une part très importante de préfabrication permet également de raccourcir très fortement les temps d’exécution du gros-oeuvre et par là-même les nuisances du chantier pour les usagers.

Image
BATPOL maquette structure
Façades

Cherchant une intégration dans son contexte, le bâtiment propose la mise en oeuvre d’inox en façade utilisé selon deux qualités brutes: brossé pour les capots des éléments verticaux de la façade, et recuit pour les tôles des allèges et ferblanterie de l’acrotère. Légèrement miroitant, il reflète le contexte intégrant ainsi le bâtiment dans son environnement. Derrière ce revêtement, la structure bois intérieure est dissociée thermiquement et permet de garantir le respect d’objectifs énergétiques élevés.

Le choix du mode constructif de la façade et sa modularité permettent une mise en œuvre rapide, atténuant non seulement les désagréments vis-à-vis des usagers du site en activité, mais également une très forte évolutivité du bâtiment, et notamment des changements typologique futurs de l’organisation des espaces intérieurs de travail des différents Services.

Image
BATPOL façade nord
Image
BATPOL façade est