Bild
BATPOL vue façade est

BATPOL

Das Projekt BATPOL besteht in der Aufstockung der 2017 errichteten Feuerwehrhalle. Das Projekt wurde von den Büros 2b architectes in Lausanne und Pirmin Jung Ingenieure AG in Thun entwickelt, die vom Gemeinderat im Anschluss an ein zweistufiges Auswahlverfahren beauftragt wurden. Es sieht die Aufstockung der Feuerwehrhalle um 6 Stockwerke vor, mit dem Ziel, ein Verwaltungsgebäude für die kommunalen Dienststellen der Ortspolizei, für Mobilität und für Informatik zu errichten. Zudem sind 2 Stockwerke mit Büros vorgesehen, die vermietet werden. Das Projekt erlaubt es, den Bedarf an zusätzlichen Räumlichkeiten zu decken und sämtliche Dienststellen der gleichen Direktion an einem einzigen Standort zusammenzufassen.

Fortschritt

  • Machbarkeitsstudie: 2016
  • Studienkredit: Ende 2016 
  • Auswahlverfahren in zwei Etappen für Arch. und Bauing: März 2017 
  • Vorprojekt und Projekt: 2017 – 2018 
  • Öffentliche Auflage der Aufstockung: April 2019
  • Objektkredit: September 2019 
  • Ausführung: Oktober 2019 bis Juni 2022
  • Bereitstellung der Räumlichkeiten: Sommer 2022
Entstehung des Projekts

Im Laufe der Entwicklung dieses Projekts (2014) hat der Bauherr das Gestaltungspotential des 400 m2 grossen Flachdachs der neuen Feuerwehrhalle untersucht. Er befürwortete das Konzept, den Standort durch eine Aufstockung zu verdichten, auf dem bereits die Feuerwehrkaserne und ein Wohngebäude für das Feuerwehrpersonal stehen. Dies war seiner Ansicht nach der zweckmässigste Vorschlag in diesem Umfeld. Dieses Vorhaben wurde denn auch durch das beauftragte Büro in einer Machbarkeitsstudie genauer untersucht. 

Machbarkeitsstudie

Die Studie hat das Potential einer Aufstockung um 4 Geschosse über dem Dach der Halle bestätigt. Das Programm der Ortspolizei und der Dienststelle für Mobilität werden 3 Geschosse besetzen, das 4. Geschoss ist der Dienststelle für Informatik zugeschrieben. Der Standortwechsel der Ortspolizei und der Dienststelle für Mobilität hat mehrere Vorteile: Er kommt dem Bedarf an Räumlichkeiten der Ortspolizei entgegen und vereinfacht die Leitung einer Direktion, indem all ihre Dienststellen unter ein Dach gebracht werden. Er ermöglicht der Stadt auch die Neuzuteilung der frei gewordenen Räumlichkeiten an der Reichengasse 37. Der Standortwechsel der Dienststelle für Informatik ermöglicht Synergien mit der Ortspolizei und der Feuerwehr und befreit die Räumlichkeiten des Bürgerspitals.

Beschreibung des Aufstockungsprojekts BATPOL

Das Projekt bietet einen programmatischen und strukturellen, rationellen und pragmatischen Ansatz, der es erlaubt, sämtliche Verwaltungsräume für die Ortspolizei und die Dienststellen für Mobilität und Informatik sowie Mietflächen zu integrieren.

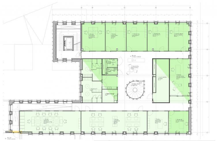
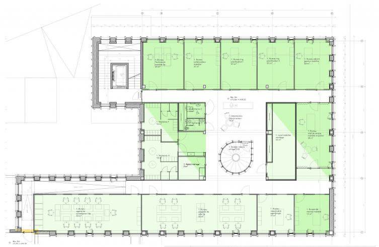
  • 1. und 2. Stock: Verwaltung der Ortspolizei und der Dienststelle für Mobilität (Empfang und öffentlich zugängliche Räume im 1. Stock);
  • 3. und 4. Stock: Büroräume zur Vermietung
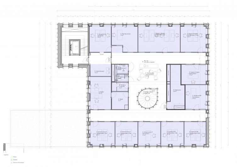
  • 5. Stock: Verwaltungsräume der Dienststelle für Informatik und Empfang.
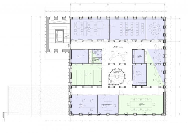
  • 6. Stock: gemeinsame Räume der Ortspolizei und der Dienststellen für Mobilität und Informatik. Die Cafeteria wird den Austausch zwischen den Mitarbeitenden sowie eine optimale Nutzung der Sitzungsräume fördern.

Alle Zugänge, auch jene zwischen den Dienststellen, sind durch ein Schleusendispositiv gesichert, das im Zusammenhang mit der internen Zirkulation zwischen den 6 Verwaltungsetagen kontrolliert wird.

Bild
BATPOL OG 1
Bild
BATPOL OG 2
Bild
BATPOL OG 5
Bild
BATPOL OG 6
Struktur

Um das Eigengewicht der Struktur und somit die auf die bestehende Halle übertragenen Kräfte sowie die Massnahmen zur Erdbebentüchtigung zu vermindern, setzt das Projekt eine tragende Holzstruktur um, die über dreieckigen Balken die Tragstruktur der bestehenden Halle übernimmt. Die Bodenplatten geben der Aufstockung horizontale Stabilität und bieten eine optimale Schalldämmung sowie eine nicht zu vernachlässigende thermische Trägheitsmasse.

Der nordwestlich ausserhalb des Volumens der Halle exzentrisch gelegene vertikale Zirkulationskern ermöglicht den öffentlichen Zugang zu den Obergeschossen. Vollständig aus Beton gestaltet, stellt er ein wichtiges Versteifungselement und einen nicht brennbaren Fluchtweg aus den oberen Geschossen dar.

Der Bau einer solchen Aufstockung, die zu einem sehr grossen Teil vorfabriziert wurde, ermöglicht auf einem genutzten Standort die Bauarbeitszeiten für den Rohbau stark zu verkürzen und somit die damit verbundenen Störungen für die Nutzer zu begrenzen.

Bild
BATPOL Strukturmodell
Fassaden

Im Bestreben, sich in die Umgebung einzubetten, wurde auf den Einbau von Edelstahl in die Fassaden gesetzt. Dieses wurde gemäss zwei rohen Eigenschaften eingesetzt: gebürstet für die Hauben der vertikalen Elemente der Fassade und geglüht für die Brüstungen und Spenglereien der Attika. Leicht spiegelnd, reflektiert er den Kontext und integriert so das Gebäude in seine Umgebung. Hinter dieser Auskleidung ist die interne Holzstruktur thermisch abgetrennt, was die Einhaltung hoher energetischer Anforderungen ermöglicht.

Die Wahl des Baumodus' der Fassade und seine Modularität erlauben eine rasche Umsetzung, die nicht nur die Unannehmlichkeiten für die Nutzer reduziert, sondern auch einen sehr grossen Spielraum gewährt, das Gebäude insbesondere an zukünftige typologische Veränderungen in der Organisation der inneren Arbeitsräume der verschiedenen Dienststellen anzupassen.

Bild
BATPOL Nordfassade
Bild
BATPOL Ostfassade