Image
projet vignettaz batiment

Agrandissement de l'école de la Vignettaz

La croissance démographique en ville de Fribourg ainsi que le développement de nouveaux quartiers d’habitation vont engendrer une augmentation importante de la population et par conséquent du nombre d’enfants scolarisés.

Fort de ce constat, la Ville de Fribourg a décidé en 2015 d’augmenter la capacité d’accueil du site scolaire de la Vignettaz et en février 2016, elle lançait un concours d’architecture. La mission des concurrents – architectes et paysagistes – était de planifier l’agrandissement du site scolaire en deux étapes: deux filières et une salle de sport au programme de la première étape, puis une filière et une salle polyvalente pour la deuxième étape, qui doit encore être confirmée.

Depuis juillet 2017, le bâtiment qui abritera le programme de la première étape est en cours de construction. Devisé à 24.5 millions de francs, il ouvrira ses portes aux élèves à la rentrée 2019.

Avancement du projet
Janvier - juin 2016
Concours d’architecture
Octobre 2016
Demande de crédit d’étude
Février 2017
Mise à l’enquête
Mai 2017 (travaux préparatoires) et septembre 2017
Demandes du crédit d’ouvrage
Juillet 2017
Début du chantier
Rentrée scolaire 2019
Mise à disposition
Concours

Lancé en février 2016 par la Ville de Fribourg, le concours d’architecture à un degré en procédure ouverte selon le règlement SIA 142 avait pour objectif de trouver la solution la plus pertinente en vue de l’agrandissement du site scolaire en deux étapes distinctes, la première devant être livrée à la rentrée 2019 et la seconde dans un horizon à déterminer.

Au terme de la procédure, le jury a sélectionné le projet lauréat "360°" parmi les 28 projets rendus: la stratégie urbaine proposée avec une implantation en bordure de site permettant de qualifier clairement les espaces extérieurs a convaincu, tout comme la simplicité de la solution qui offre des espaces intérieurs généreux et une organisation spatiale fonctionnelle.

Image
Projet de concours - implantation. © Dias-Cottet architectes Sàrl

Une estimation sommaire des coûts des cinq projets retenus pour le dernier tour du jugement a été effectuée par un bureau indépendant d’économie de la construction entre les deux jours de délibération du jury. Elle a démontré que l’objectif financier décrit dans le programme du concours était atteint.

Sur recommandations du Jury, le Conseil communal décidait en séance du 28 juin 2016 d’attribuer aux auteurs du projet "360°", le bureau d’architecture Dias - Cottet Architectes Sàrl à Lausanne et le bureau d’architectes-paysagistes Interval Paysage Sàrl à Chavannes-près-Renens, le mandat d’architecte et de paysagiste pour l’ensemble des travaux prévus de planification et de réalisation de la 1ère étape du projet.

Le Rapport du jury décrit les objectifs et programme du concours, ainsi que les projets et le choix du jury.

Mandataires
  • Architecte: Dias - Cottet Architectes Sàrl, à Lausanne, mandaté à l'issue du concours d'architecture en procédure ouverte
  • Architecte pour la Direction des travaux: Page Aloys, Frédéric et Geneviève Architectes SA, à Fribourg, en sous-traitance des architectes mandatés
  • Architecte - Paysagiste: Interval Paysage Sàrl, à Chavannes-près-Renens, mandaté à l'issue du concours d'architecture en procédure ouverte
  • Ingénieur civil: Edy Toscano AG à Villars-sur-Glâne, mandaté à l'issue d'une procédure ouverte d'appel d’offres
  • Ingénieur sanitaire: Basler & Hofmann à Morat, mandaté à l'issue d'une procédure d'appel d’offres en gré à gré concurrentiel
  • Ingénieur en chauffage-ventilation: Basler & Hofmann à Morat, mandaté à l'issue d'une procédure d'appel d’offres en gré à gré concurrentiel
  • Ingénieur en électricité: SRG Engineering  Ingénieurs-Conseils Scherler SA à Fribourg, mandaté à l'issue d'une procédure d'appel d’offres en gré à gré concurrentiel
  • Géomètre: Géosud SA à Villars-sur-Glâne, mandaté à l'issue d'une procédure d'appel d’offres en gré à gré concurrentiel
  • Acousticien: AB14 Sàrl à Fribourg, mandaté à l'issue d'une procédure d'appel d’offres en gré à gré concurrentiel
  • Spécialiste en protection incendie: CR Conseils Sàrl à Oron-la-Ville, mandaté à l'issue d'une procédure d'appel d’offres en gré à gré concurrentiel
  • Sondages géotechniques: Géolina SA à Fribourg, mandaté à l'issue d'une procédure d'appel d’offres en gré à gré concurrentiel
Description de l'agrandissement
Programme et organisation spatiale

Le programme du concours de projets demandait une solution en deux étapes pour l’agrandissement de l’école de la Vignettaz dans son périmètre actuel.

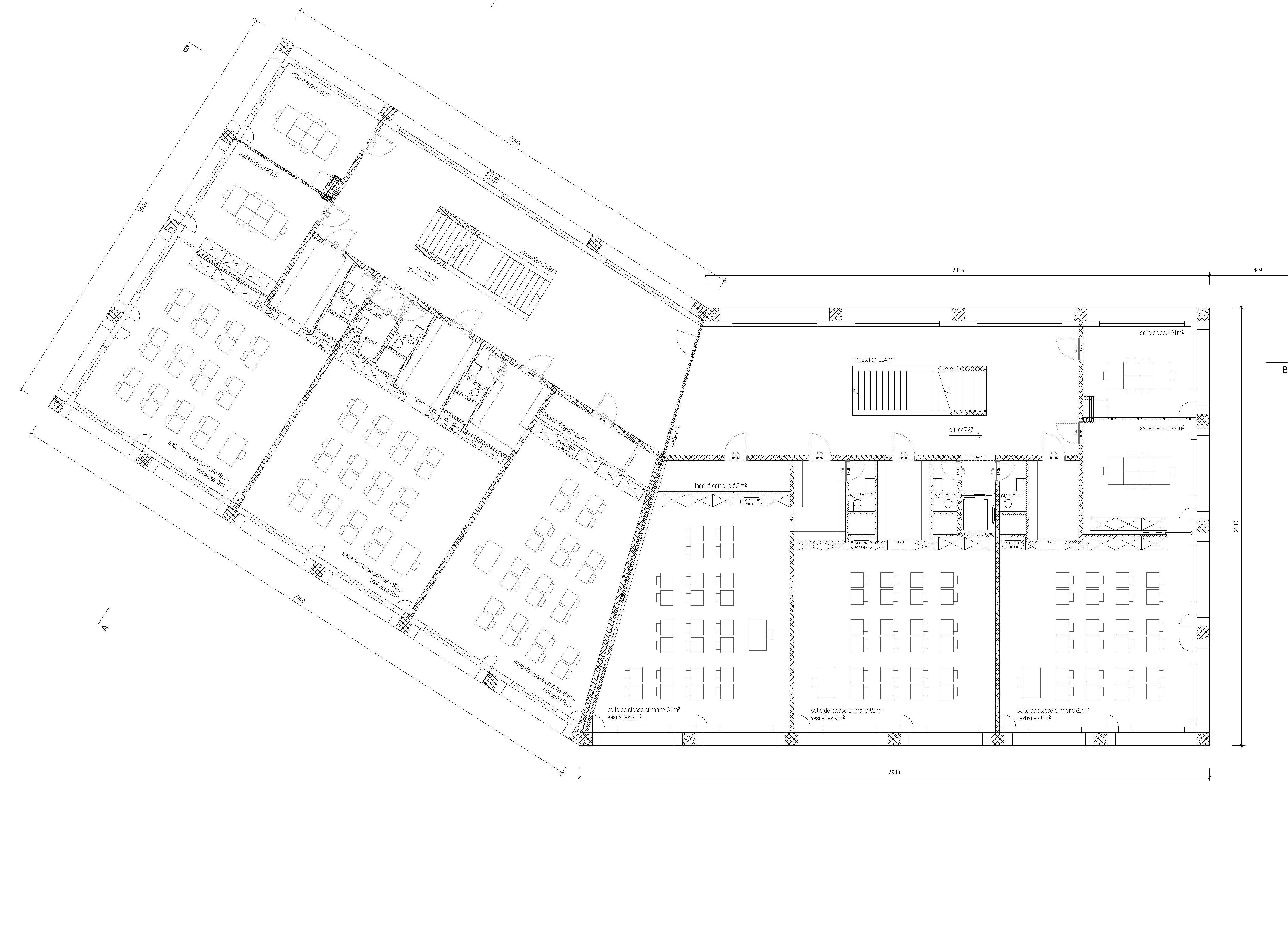
  • La première étape de construction, prévue pour la rentrée scolaire 2019, doit accueillir deux filières, soit 4 salles de classe enfantine, 12 salles de classe primaire, 4 salles d’activités créatrices, 6 salles d’appui, une salle des maîtres et 2 bureaux de responsables d’établissement, ainsi qu’une salle de sport simple et un abri de protection civile.
  • La deuxième étape, dont le délai de construction n’est pas encore défini, devra quant à elle abriter une filière supplémentaire et une salle polyvalente.

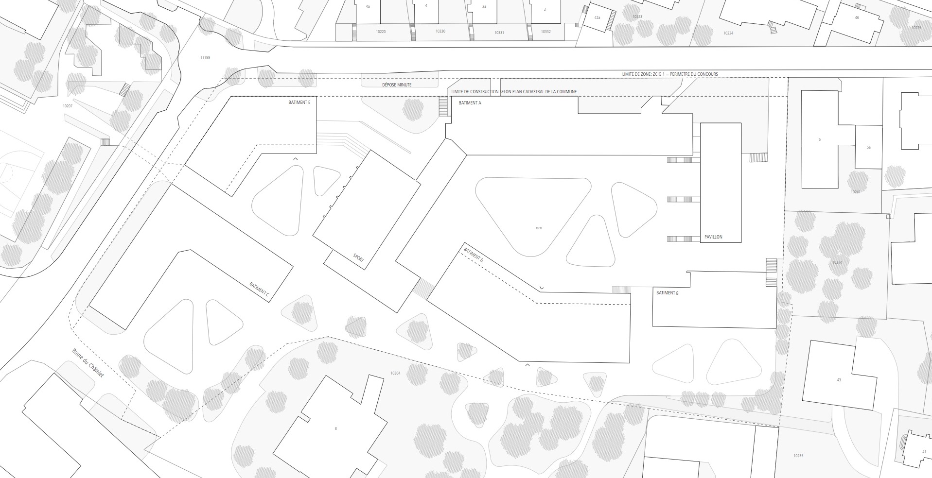
Le bâtiment de la première étape s’implante en bordure du parc du Châtelet. Il forme un volume allongé et plié en son milieu, avec des façades vitrées sur toutes les faces qui font rayonner le bâtiment à 360° sur le contexte environnant.

Le rez inférieur est semi-public, avec un accès séparé depuis le parc du Châtelet. Il abrite les vestiaires de la salle de gym et l’accès à cette dernière, qui se développe un étage en-dessous et profite de la topographie du site pour être éclairée par de grandes baies vitrées. Outre l’accès au sous-sol où se loge aussi un abri de protection civile de 400 places, on trouve également au rez inférieur deux salles d’activités créatrices et la salle des maîtres. Ces locaux sont reliés au reste du programme scolaire qui se développe aux étages supérieurs par un escalier qui peut être fermé afin de cloisonner la partie semi-publique de la partie scolaire en-dehors des heures de classe.

Au rez supérieur, quatre salles de classe enfantine et deux salles d’activités créatrices sont distribuées par un large couloir qui dialogue avec la cour principale du site de la Vignettaz par ses grandes baies vitrées et en s’ouvrant à chacune de ses extrémités sur deux préaux couverts.

Au-dessus se développent les deux étages de classes primaires où six salles d’appui et les deux bureaux des responsables d’établissement trouvent également leur place.

Image
Plan étage type. © Dias-Cottet Architectes Sàrl
Salle de sport simple 

La salle de sport répond aux normes de l’Office fédéral du sport OFSPO. Les dimensions de l’aire de jeux de 28 x 16 x 7 mètres sont axées sur la pratique du basketball, volleyball et uni-hockey sur petit terrain.

En lien avec l’aire de jeux, la salle de sport dispose de tous les locaux et équipements nécessaires à un usage du sport scolaire ainsi que du sport de compétition au niveau régional.

Matérialisation

L’intérieur de l’école se matérialise par des surfaces lisses, colorées et sans joints. Ainsi, tous les sols sont prévus en résines epoxy qui offre une haute résistance à l’abrasion et aux chocs tout en étant une solution économique.

Les parois seront lissées et finies avec une peinture sur papier peint en fibre de verre. Tous les locaux auront un faux plafond en placo-plâtre. Dans les locaux d’enseignements, ces plaques seront munies d’un traitement acoustique.

Le mobilier fixe des salles de classe (armoires) sera réalisé en panneaux de fibres de bois (MDF).

Façades

Les façades se composent d’une structure en piliers et sommiers en béton coulé sur place et laissé apparent. Des vitrages triples prennent place entre la structure en béton. La façade se caractérise ainsi par ses grandes surfaces vitrées. Des ouvertures sont prévues par des portillons d’entretien et de ventilation.

Un rideau intérieur, du sol au plafond, permet l’obscurcissement total des salles de classe. Du coté extérieur sur les faces est, sud et ouest, un rideau avec déplacement motorisé assure un obscurcissement partiel et limite la surchauffe estivale. Ce rideau est protégé par un vitrage extérieur affleuré à la structure béton, donnant un aspect lisse à la façade.

Equipements techniques

Le choix des installations techniques du bâtiment résulte en grande partie de l’obligation posée aux nouvelles constructions publiques de répondre aux exigences du label Minergie P.

Outre la nécessité d’installer un système de ventilation double-flux pour garantir l’aération suffisante d’un bâtiment très bien isolé et très étanche, les apports en énergies renouvelables doivent également être privilégiés.

Dans cet objectif, le bâtiment est chauffé par le chauffage à distance (CAD) et une grande partie de la consommation électrique provient de panneaux photovoltaïques placés en toiture. L’option a été prise de profiter du chantier pour alimenter l’ensemble du site au CAD et de relier les bâtiment existants aux panneaux photovoltaïques afin d'augmenter l'autoconsommation sur le site.

Aménagements extérieurs

Dans la cour principale, un paysage bosselé en revêtement synthétique recyclé est équipé de jeux d’adresse et d’équilibre, de mobilier fixe pour s’asseoir, ainsi qu’agrémenté d’une végétation d’arbres fruitiers, de plantes vivaces et de plantes à fruits comestibles. Le même type d’aménagement est prévu au sud du bâtiment B, dans une dimension plus modeste, sans paysage bosselé.

Au nord du site, une allée d’arbres longera la route de la Gruyère, la séparant du trottoir et d’une nouvelle place de préau allongée où sont également prévus un abri pour les vélos et un couvert. Deux autres emplacements pour les vélos sont également planifiés au sud de la salle de sport existante et le long des pavillons provisoires.

Avec ces aménagements, tous les arbres abattus pour laisser la place à la nouvelle construction sont compensés sur le site.

Image
Projet des aménagements extérieurs, 26.03.2018. © Interval Paysage Sàrl
Photos du chantier
Image
Juillet 2017
Image
Septembre 2017
Image
Octobre 2017
Image
Décembre 2017
Image
Février 2018
Image
Mars 2018
Image
Mai 2018
Image
Août 2018
Image
Novembre 2018
Image
Janvier 2019