Transformation du bâtiment des Arcades

Projet terminé en 2021

Ce projet est terminé. La page que vous consultez reste en ligne sous forme d'archive, à toutes fins utiles.

Salle à manger; rez-de-chaussée; Arcades; Fribourg

Au cœur du quartier historique du Bourg, le Café des Arcades est un lieu cher aux Fribourgeoises et aux Fribourgeois. L’établissement borde la place des Ormeaux, qui sera valorisée dans le projet de réaménagement du Bourg. Le Conseil communal a décidé d’aller de l’avant dans son aspiration à requalifier le Bourg en concrétisant le dossier de la transformation des Arcades et de son café.

Des travaux d’assainissement des installations électriques et sanitaires devenaient urgents ; la cuisine professionnelle devait être adaptée aux normes actuelles et des aménagements permettant l’accès à l’établissement pour les personnes à mobilité réduite devaient être entrepris. Par ailleurs, des interventions étaient nécessaires sur la toiture-terrasse dite du Bletz ; des faiblesses statiques furent confirmées en 2016, ce qui mena à l’interdiction de rassemblements de masse sur ce site, par exemple lors des festivités de la Saint-Nicolas. Afin de pouvoir réutiliser l’espace de la toiture-terrasse pour des manifestations publiques, un renforcement de la dalle fut indispensable.

Informations générales
Objet Bâtiment des Arcades
Situation Place des Ormeaux 1, 1700 Fribourg
Type de projet Transformation et rénovation du Café des Arcades/renforcement de la structure de la toiture-terrasse.
Programme Café historique et pavillon (90 places), cuisine professionnelle, nouveaux locaux techniques en sous-oeuvre, sanitaires.
1x local commercial (surface d’exposition) avec dépôt et sanitaire.
Mise en lumière du bâtiment

 

Image
Place des Ormeaux 1
Mandataires
Direction architecturale Studio Montagnini Fusaro Architettura e paesaggio, Venise
Direction des travaux Boegli Kramp Architekten AG, Fribourg
Ingénieur civil Gex & Dorthe ingénieurs consultants sàrl, Bulle
Ingénieur électricité

Bersier Bernard bureau d'études en électricité, Marly

Ingénieur CVS Chammartin Spicher SA, Fribourg
Éclairagiste Susanna Antico lighting design studio, Milan
Gestion de l'éclairage BestOn GmbH, Rechthalten
Géomètre Delta Géo SA, Fribourg
Planificateur cuisine Kitchen Swiss Line, Cottens

 

Calendrier
Décembre 2016 Demande du crédit d'étude
Juillet 2018 Autorisation de construire
Janvier 2019 Vote crédit d'ouvrage
Octobre 2019 Début des travaux
Janvier 2021 Fin des travaux
Janvier 2021 Remise du bâtiment
Septembre 2021 Inauguration  

 

Historique

Le bâtiment des Arcades construit en 1861-64 par l’architecte Théodore Perroud à l’emplacement d’anciennes halles démolies en 1798 constitue un des exemples les plus importants de galerie marchande du XIXe siècle dans la ville de Fribourg. Urbanistiquement, l’édifice s’insère dans le contexte bâti en marquant la transition entre la Place des Ormeaux et les hauts immeubles environnants. Le pavillon, dressé au-dessus du Café, articule le rapport avec la rue de Morat et la Place de Notre-Dame avec son église.

À l'origine, chaque travée du bâtiment correspondait à une boutique, à l'exception du premier magasin et du café. Les magasins du rez-de-chaussée sont reliés aux locaux de service situés au premier étage. Quant au Café des Arcades, le procès-verbal de la séance de la Commission des Arcades du 10/01/1864 nous informe de la présence d’un escalier tournant reliant l’escalier en pierre, qui dessert les caves avec l’escalier en colimaçon, qui relie encore aujourd’hui le premier étage au pavillon et à la terrasse du « Bletz ».

En 1915, le Café des Arcades est agrandi de façon modulaire avec l’ajout d'une surface correspondant à deux travées. La dimension du café passe alors de trois à cinq travées. Par rapport à l’état actuel des lieux, la cuisine est placée au même endroit, mais elle est plus petite. Ce n'est qu'en 1935 que la cuisine atteint ses dimensions actuelles et que la paroi qui la délimite ne suit plus le rythme des arcades. Le bâtiment dans son état actuel est doté d’un système structurel dont l’essentiel, hormis les murs de façade, date du début du XXe siècle.

Vue d’ensemble 1950

Image
Fotografien von Jacques Thévoz. Sammlung Kunstdenkmäler © Amt für Kulturgüter Freiburg.
Objectifs

Le projet de transformation du Café des Arcades représente l’un des premiers éléments tangibles de requalification du Bourg. Le projet s'est articulé autour des thématiques suivantes :

  • la valorisation du rapport entre l'intérieur du café et la Place des Ormeaux;
  • l’agrandissement du café en intégrant une partie des locaux du magasin attenant;
  • la définition d’une nouvelle exploitation verticale du Café des Arcades;
  • l’organisation d'une hiérarchie plus claire entre les « espaces servants » (cuisine, toilettes, vestiaires, dépôts, locaux techniques) et les « espaces servis » (salle à manger, pavillon);
  • l’accessibilité des personnes à mobilité réduite aux locaux du café et à la terrasse;
  • l’assainissement structurel de la toiture-terrasse du « Bletz » pour retrouver cet espace comme lieu public majeur du site;
  • la diminution de l’impact environnemental, en se raccordant au chauffage à distance.
Agrandissement du Café des Arcades

La réalisation adopte une démarche respectueuse, cherchant avant tout à mettre en valeur la substance existante et à conserver l’image de « café de quartier ». L’apparence extérieure, presque inchangée depuis 1863, est préservée, tout comme les éléments de décoration intérieure. Un réaménagement notable concerne le déplacement à l’étage de la cuisine qui a été agrandie et modernisée. Les WC trouvent également leur place au 1er. Ces déménagements ont permis un agrandissement de la salle à manger au rez-de-chaussée

Un nouvel escalier permet de connecter le premier étage à la salle à manger du rez-de-chaussée. Pour les personnes à mobilité réduite, un ascenseur relie maintenant chaque étage de l’établissement. Le sous-sol est destiné aux locaux du personnel, aux dépôts et aux locaux techniques

Salle à manger du rez-de-chaussée
Terrasse du Bletz et pavillon

Le pavillon du Bletz est maintenant exploité avec le café. Dans cet esprit les locaux servants (cuisine et sanitaires) ont été placés au 1er étage, entre le café au rez-de-chaussée et le pavillon et sa terrasse en toiture.

Un équipement réduit de cuisine intégré au bar, permet une restauration simple dans l'espace du pavillon et sa terrasse.  Son ameublement est limité au strict nécessaire afin de préserver son habillage en bois et la vue sur l’extérieur à travers les grandes fenêtres existantes. L'ancien lustre du Buffet de la Gare s'insère avec élégance dans l'espace renouvelé.

Pavillon du Bletz
Plans
Image
Plan pavillon du Bletz
Image
Plan étage 1
Image
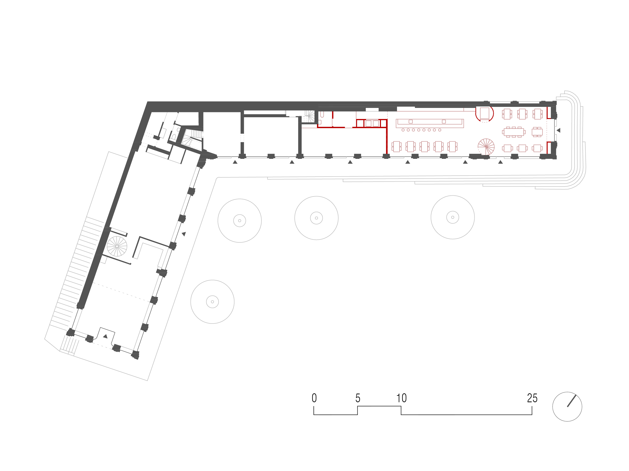
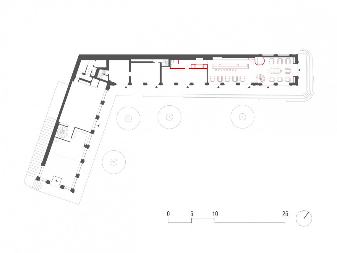
Plan du rez-de-chaussée
Image
Plan du sous-sol
Image
Coupe
Photographies pendant le chantier
Image
Travaux de démolition, 1er étage , état le 3 décembre 2019
Image
Travaux de démolition, rez-de-chaussée , état le 21 janvier 2020
Image
Excavation d’un nouveau local technique, sous-sol , état le 28 avril 2020
Image
Préparation pour le bétonnage de la dalle collaborante, pavillon du Bletz , état le 3 mars 2020
Image
Préparation pour le bétonnage du radier, sous-sol existant , état le 17 mars 2020
Image
Nouveau local technique, sous-sol , état le 5 mai 2020
Image
Mise en place du nouvel escalier, rez-de-chaussée, état le 8 septembre 2020
Image
Lambourde du nouveau parquet, pavillon du Bletz , état le 18 septembre 2020
Image
Monobloc pour la ventilation des cuisines, sous-sol , état le 22 septembre 2020
Image
Locaux techniques, sous-sol , état le 30 octobre 2020
Image
Pose du parquet au rez-de-chaussée, état le 10 novembre 2020
Photographies après rénovation
Image
Place des Ormeaux- Thomas Telley Architektur-Fotografie, St. Antoni
Image
Place des Ormeaux de nuit - Thomas Telley Architektur-Fotografie, St. Antoni
Image
Cuisine, 1er étage - Thomas Telley Architektur-Fotografie, St. Antoni
Image
Salle, rez-de-chaussée - Thomas Telley Architektur-Fotografie, St. Antoni
Image
Salle, rez-de-chaussée - Thomas Telley Architektur-Fotografie, St. Antoni
Image
Salle, rez-de-chaussée - Thomas Telley Architektur-Fotografie, St. Antoni