Image
Vue façade Jolimont 1905 depuis rue des écoles

CO de Jolimont, bâtiment 1905

Transformation et rénovation du bâtiment 1905, construction d’une nouvelle liaison.

L’augmentation du nombre d’élèves des écoles enfantines et primaires, en raison de la forte croissance démographique, a des incidences importantes au niveau des effectifs des Cycle d’orientation. Les besoins en locaux scolaires seront donc conséquents dans les prochaines années, pour des CO qui arrivent déjà à saturation. Ainsi, le CO de Jolimont construit en 1972 pour 500 élèves compte aujourd’hui plus de 790 élèves, encadrés par un personnel enseignant et administratif de près de 120 personnes.

Le complexe scolaire de Jolimont est composé d’une ancienne bâtisse protégée, située au nord-est du site et d’un bâtiment en béton apparent, réalisé en 1972. L'ancien édifice était occupé par le Cycle d'orientation de langue allemande jusqu’à l’ouverture de la DOSF à la rentrée scolaire 2016. Ce déménagement a libéré de nombreux locaux qu’il s’agit aujourd’hui de rénover, de transformer et d’affecter au CO de langue française, à l’étroit dans le bâtiment de 1972.

Avancement
  • Étude de faisabilité octobre 2016
  • Avant-projet octobre 2017
  • Demande du crédit d'étude, message du Conseil communal au Conseil général novembre 2017
  • Étude du projet février - septembre 2018
  • Enquête publique et permis de construire août-décembre 2018
  • Demande crédit d’ouvrage au Conseil général février 2019
  • Début des travaux avril 2019
  • Fin des travaux août 2020
Étude de faisabilité

En octobre 2016, le Service d'urbanisme et d'architecture a mandaté pour une étude préliminaire le bureau d’architecture Deschenaux Follonier - Atelier d’architectes associés. Le but était de sonder les possibilités qu’offre le bâtiment 1905, de définir l’ampleur des travaux impératifs, nécessaires et souhaités en les chiffrant et sur cette base, de préciser les possibilités d’intervention en fonction des besoins.

Cette procédure a été choisie afin de cerner les besoins et le potentiel du bâtiment existant, en tenant compte des différentes exigences des principaux Services communaux et/ou cantonaux dans le cadre de son assainissement et de sa transformation.

Ce choix permet de mettre en concurrence les acteurs de cet appel d’offres de prestations sur la base d’un problème clairement défini, afin d’obtenir les meilleures prestations et d’attribuer les prestations qui font l’objet du marché à l’auteur de l’offre jugée la plus performante.

Au terme des études préliminaires et de l’avant-projet, le parti retenu consiste en un assainissement des locaux et des installations techniques, un remplacement de toutes les fenêtres ainsi qu’une proposition de nouvelle liaison entre les deux bâtiments existants et un bâtiment entièrement accessible aux personnes à mobilité réduite. Il prévoit également l’aménagement et l’isolation des combles. L’avant-projet est estimé à environ 12,4 millions de francs tous CFC compris.

Avant-projet

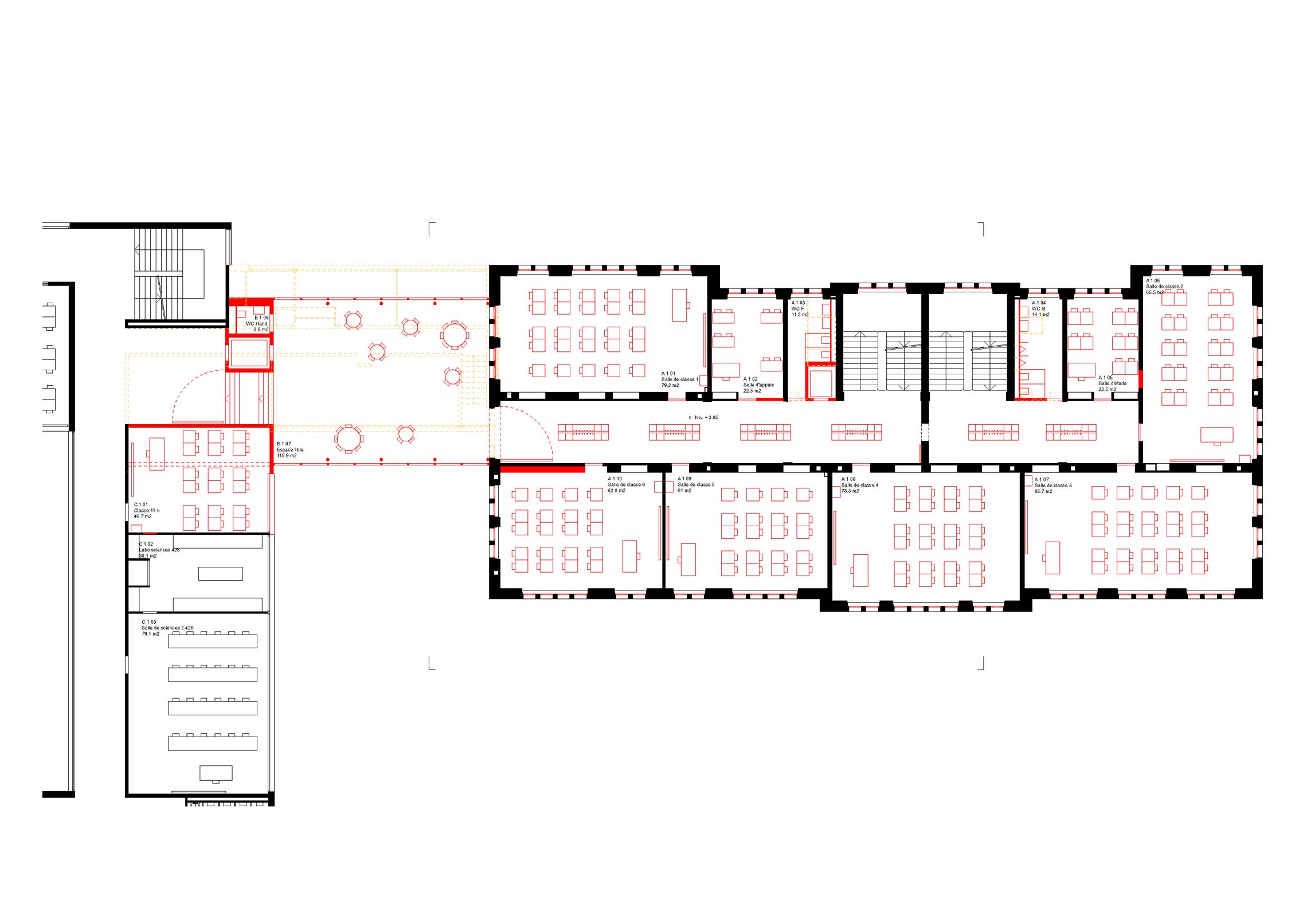
Le projet de rénovation du CO de Jolimont propose de redéfinir un ensemble, en créant une liaison fonctionnelle pour les élèves et les professeurs.

La problématique de l’accessibilité des bâtiments aux personnes à mobilité réduite se résout grâce à la construction de la nouvelle liaison, qui s’insère à merveille dans le terrain et propose deux accès extérieurs de plain-pied. Le premier pour l’entrée principale, côté Rue des Écoles, et le deuxième qui donne accès au niveau de la cour, actuellement desservie uniquement par des escaliers et un passage latéral au bâtiment Jolimont 1905. De plus, l’ajout de deux ascenseurs permet d’accéder à presque tous les niveaux de l’école. L’un est positionné au centre du bâtiment Jolimont 1905 et dessert tous les niveaux de ce bâtiment et l’autre a pris une place stratégique dans la liaison. L’ascenseur de la liaison permet de lier tous les niveaux scolaires du CO de 1970 depuis la liaison. Il faut savoir que jusqu’à présent aucun ascenseur n’est présent sur le site.

La nouvelle liaison accueille de nouveaux espaces dédiés aux élèves et aux professeurs. Ces locaux sont indispensables pour un bon fonctionnement et un climat d’étude optimal. La situation centrale de ces locaux apporte une fluidité dans les déplacements des élèves et des professeurs.

Le renforcement de la charpente, la mise à jour du système constructif de la toiture et l’isolation des combles permettent d’utiliser le volume sous toiture que propose le bâtiment et ainsi d’ajouter de nouveaux locaux. Ainsi, l’entier du bâtiment est utilisé et aucun espace n’est laissé pour compte.

Image
1er étage, AVP Deschnaux-Follonier Architectes