Bild
Riesenhängematte

Pavillons und Spielgelände der Heitera

Sechs neue provisorische Pavillons werden auf dem bestehenden Spielgelände des Quartiers, auf den Spielplatz und den Aussensportplatz im Südwesten der Schule Schoenberg übergreifend angesiedelt. Diese Pavillons wurden von den Architektenbüros mullerarchitecte Sàrl und mazzapokora GmbH entworfen und danach vom Generalunternehmen Schaerholzbau AG in Altbüron (LU) entwickelt und realisiert.

Der Bau dieser Pavillons schafft Möglichkeiten für die Erneuerung des Sportplatzes und die Verbindung mit dem unteren Niveau bestehender Pavillons. Ein von den Landschaftsarchitekten Verzone Woods Architectes Sàrl entworfenes Spielgelände wurde im Heiterapark eingerichtet und Sport- und Spielplätze sind um die Pavillons herum derzeit in Arbeit. Es ging dabei einerseits darum, den Verlust des zwar veralteten, aber durchaus genutzten Spielplatzes im Südwesten des Areals am Standort der Pavillons zu kompensieren, und andererseits den Kindern des kürzlich (2013) eröffneten Kindergartens, der kein Spielgelände besass, einen solchen zu bieten.

Fortschritt
  • Erarbeitung des Projekts für das Spielgelände: 2016 
  • Beginn der Arbeiten des Spielgeländes: Sommer 2017 
  • Eröffnung der Spielgelände: November 2017 (Hängematte) und März 2018 (Tunnel) 
  • Öffentliche Auflage der 6 Pavillons (2. Etappe): Ende April 2017 
  • Planungsverfahren und Ausschreibung: Juli – Dezember 2017 
  • Vorbereitende Arbeiten für die Pavillons und die Aussengestaltung: Februar bis Ende April 2018 
  • Aufstellung der Pavillons: Ende April bis Ende Juni 2018 
  • Aussengestaltung: Juli bis August 2018 
  • Übergabe der Anlage: Schulbeginn 2018 
  • Bepflanzung: Herbst 2018
Projekt für die Pavillons

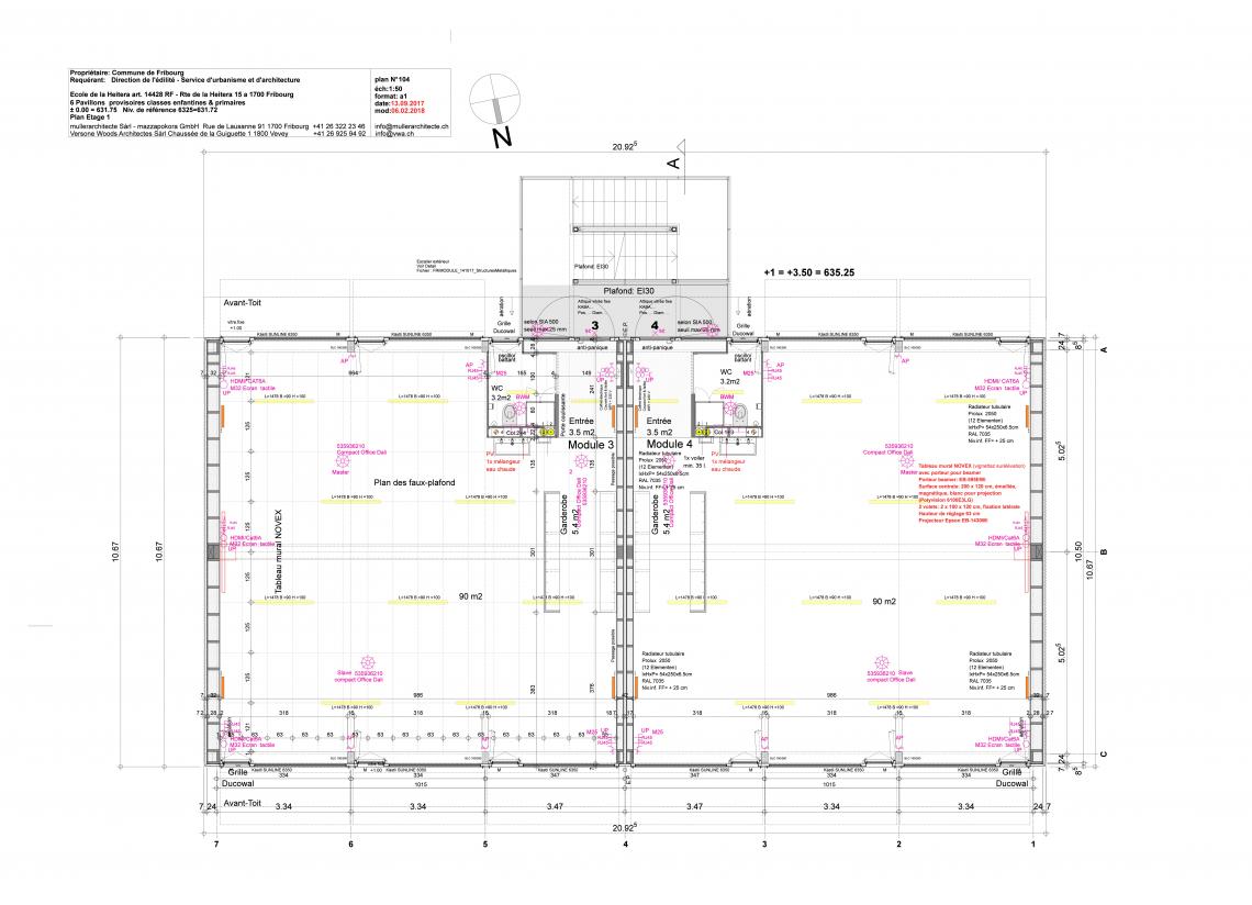
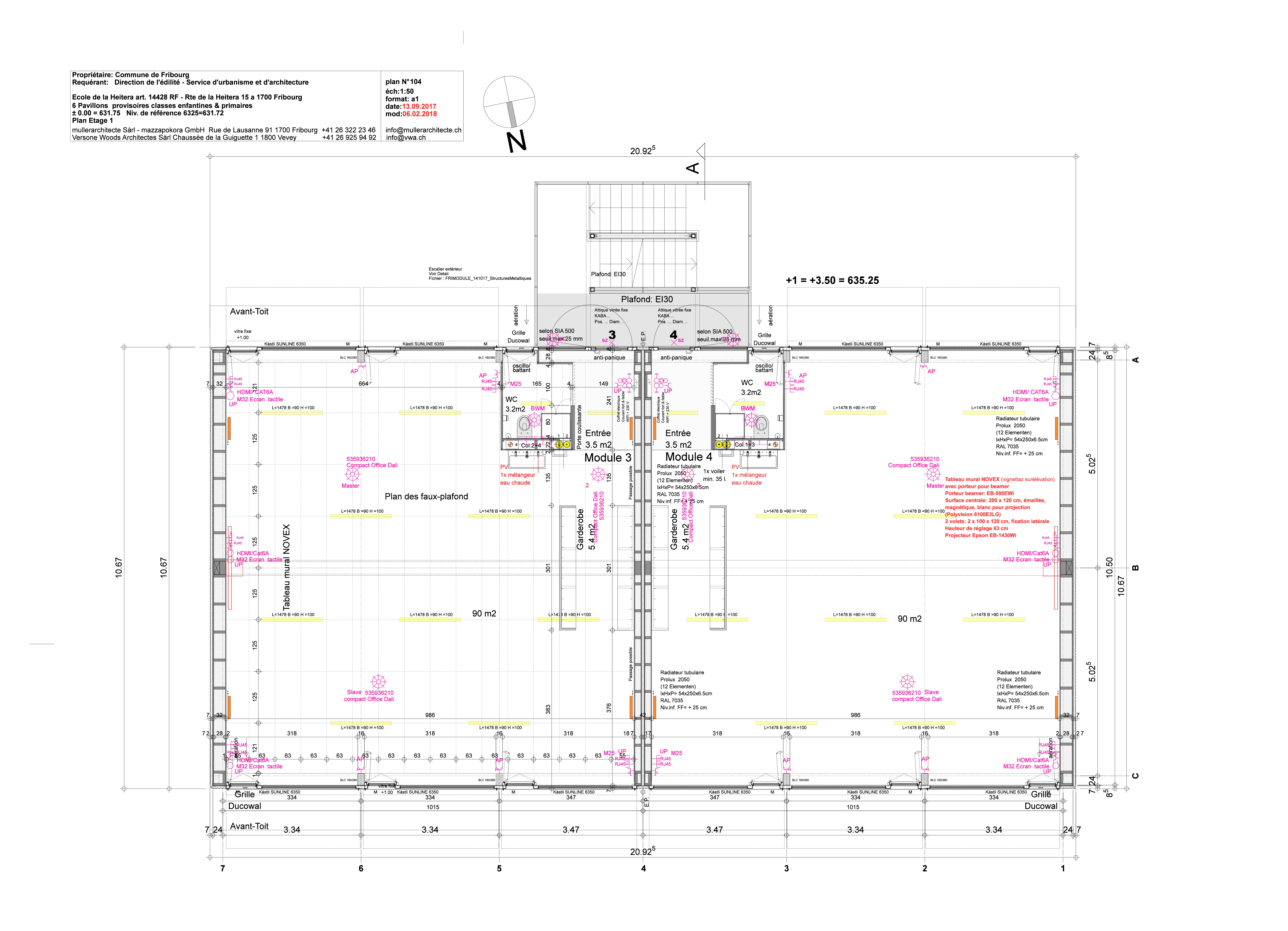
Jeder der 100 m2 grossen Pavillons ist mit einer Garderobe und einer Sanitäranlage ausgestattet und kann bei Bedarf umgehend als Klassenzimmer für den Kindergarten oder die Primarschule genutzt werden. Die Pavillons des gleichen Typs wie die ersten Pavillons von 2015 bestehen aus vorfabrizierten Holzelementen. Im Inneren sind die Wände aus Mehrschichtplatten, der Boden aus Linoleum und die Decken aus Heradesign (Holzfaserplatten) gestaltet. Die Vollfassaden bestehen aus Scobalit und die Bedachung aus Blech. Ein äusseres Treppenhaus erschliesst die Klassenzimmer in den oberen Geschossen.

Bild
Grundriss Pavillons
Projekt für die Aussengestaltung der Pavillons

Das Projekt sieht auf dem oberen Niveau einen Multisportplatz vor, der sich in die heutige Geometrie des asphaltierten Platzes einfügt und für Fussball, Volleyball, Badminton und Basketball ausgestattet ist. Spielerische Farbmotive grenzen die sportlichen Aktivitäten von den Sektoren für Verkehr und Erholung ab. Ein Verkehrsstreifen aus Farbasphalt und eine linienförmige Sitzbank bieten einen Korridor zwischen dem zukünftigen Pavillon und dem Sportplatz. Eine bepflanzte, kreisförmige Sitzbank schützt den Zugang zur Ludothek und zur Sporthalle und bietet einen beschatteten Erholungsbereich.

Das untere Niveau bietet topographische Modulationen (Betonmäuerchen und Asphaltbuckel) für Skateboardfahrer. Ein Weg und eine Treppe verbinden die zwei Niveaus. Eine Blumenwiese und eine Sträuchergruppe tragen zur Begrünung des Areals bei. Am Fusse der Fassaden der bestehenden Pavillons sind Gemüsebeete vorgesehen.

Bild
Sport- und Rollgelände
Projekt für das Spielgelände des Kindergartens

Es sind zwei voneinander getrennte Plätze geplant, die in 2 aufeinanderfolgenden Etappen umgesetzt werden. Die erste Etappe südlich des Gebäudes ist für den Kindergarten bestimmt und besteht aus einer Riesenhängematte und zwei kleinen Holznestern. Das bestehende Wäldchen mit grossen Bäumen wird mit Obstbäumen ergänzt, die den Kindern eine didaktische Erfahrung bieten.

Die nördlich der Schule gelegene Etappe 2 besteht aus einer Reihe grüner Räume, die durch topographische Modulationen zum Schutz gegen die Strasse und durch ein Spiel von Holzschranken gebildet werden. Diese Elemente nehmen verschiedene Formen an: Weidentunnel, Holzlabyrinth, bepflanzter Hang mit Rutschbahn, Spielstruktur und Erholungsbereich.

Bild
Spielgelände des Kindergartens
Bild
Plan des Spielgeländes nördlich des Kindergartens
Bild
Die Riesenhängematte und die Vogelnester
Bauarbeiten
Bild
Bauarbeiten des Spielgeländes des Kindergartens
Bild
Bauarbeiten der Pavillons